FSZ氟塑料合金泵
產品分類: 氟塑料合金泵
FSZ系列氟塑料合金泵是一種鋼襯塑結構的防腐離心自吸泵,過流部件的材料有超高分子量聚乙烯(UHMWPE)、聚丙烯(PP)和聚偏二氟乙烯(F2)等。FSZ-Z型泵可以用于吸送80℃溫度以內的腐蝕性清液,FSZ-K型泵可以吸送含固量在15%(體積比)以內的料漿。
訂購熱線:
18921132828
FSZ氟塑料合金泵的產品簡介
FSZ系列鋼襯氟塑料合金泵和其它同類防腐自吸泵相比較,明顯的優勢在于:
一是采用了不脫落、不變形、不開裂的襯塑專有技術,能使襯層牢固地錨固在泵鋼外殼上,是比其它襯塑自吸泵更好的質量優勢。
二是和其它全塑自吸泵相比,有較好的抗熱變形性能,泵機在一定溫度運行時,泵容腔不會像全塑自吸泵那樣產生變形,進而產生故障。
FSZ氟塑料合金泵的型號與標識

FSZ氟塑料合金泵的結構簡圖

泵的密封結構簡圖
安裝
1. 泵經長途運輸到達生產場地,安裝前須檢查整機零部件是否完好無損,緊固件如有松動,應予緊固,檢查泵軸、電機軸的同心度,如有移位,應予校正。
2. 安裝時吸入管路要盡量減少管路水力損失,不得裝小于90°的彎頭,進口管路上90°彎頭不超過2個,泵進口應設濾網,防止大塊雜物進入泵內,保證泵能正常運轉。
3. 進水管的連接螺栓要均力擰緊,密封要嚴密不能漏氣,否則會嚴重影響泵的自吸性能。
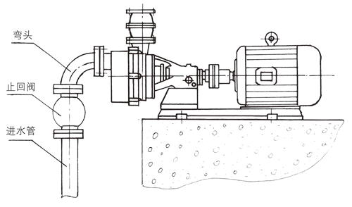
4. 進水管或出液管應安裝單向止回閥,以防止停車時發生虹吸現象。安裝止回閥應注意盡量垂直安裝(如下圖)。

操作使用
1. 檢查電機運轉方向與泵的運轉方向標記是否一致,切勿反轉!
2. 泵體內須注滿液體才能啟動運轉,嚴禁空動轉。泵機在規定的自吸高度范圍內如果5~8分鐘尚不能自吸出液,應立即停機檢查原因,以防止泵內工作液升溫,損壞泵機。
3. 第一次在泵體內注液后一般不需再注液,但停機時間長或密封在停機后有泄漏現象存在,泵內液體損失,在第二次開車時,要檢查泵內存液情況,或加滿后再開機。
4. 安裝冷卻水的泵機在啟動前,應先放冷卻水(自來水),水壓不超過0.02MPa。其作用主要一是冷卻密封系統,防止損壞密封,進而損壞葉輪;二是沖洗密封,增加密封使用壽命。
5. 軸承座應定期在上方的加油孔中注放40#柴機油,油量到視鏡一半為限,以增加軸承的運轉壽命。
6. 冬季長期不使用時,應排盡泵體中的液體,以免受冷凍后不能正常工作。
相關資訊
- 20-04-23 宙斯泵業簡訊 | 市丁蜀消防中隊與我司聯合開展消防演練
- 20-04-17 宙斯泵業脫硫循環泵單層噴淋與多層噴淋的對比
- 20-04-13 宙斯泵業集裝式機械密封定位板的說明
- 20-04-09 宙斯泵業UHB-ZK/C新型防腐耐磨泵動畫解說
產品中心
聯系我們
宜興市宙斯泵業有限公司
咨詢:0510-87440300
Email:754917141@qq.com
公司地址:江蘇省宜興市丁蜀鎮大浦工業集中區






